Xe tải chở thủy sản Isuzu QKR QLR77FE4 được thiết kế đóng mới tại Trường Long Auto hiện đang là mẫu xe nhận được nhiều sự quan tâm nhất trên thị trường hiện nay. Là mẫu xe được thiết kế đóng mới trong việc chuyên chở thủy hải sản và đảm bảo được hải sản tươi sống trong suốt quá trình vận chuyển. Do đó nếu bạn đang tìm kiếm cho mình một mẫu xe tải chở thủy sản bền đẹp và chất lượng nhất thì đây sẽ là mẫu xe tải mà bạn không nên bỏ qua.
Đôi nét về xe tải chở thủy sản Isuzu QKR QLR77FE4
Xe tải chở thủy sản Isuzu QKR QLR77FE4 là mẫu xe tải được khách hàng đánh giá cao cả về hình thức lẫn chất lượng sản phẩm. Với thiết kế cabin đầu vuông thế hệ mới, từng đường nét được nhà Isuzu trau chuốt tạo nên sự hài hòa góc cạnh trong từng chi tiết. Thêm vào đó với phần cabin vuông còn tạo nên được sự mạnh mẽ và thu hút một cách khó cưỡng.
Sử dụng cho mình hệ thống cụm đèn pha tinh xảo được thiết kế hình trụ đẹp mắt với những đường cắt gọt tỉ mỉ tạo nên được nhiều sự tổng thể. Hệ thống đèn sử dụng trong mẫu xe tải chở thủy sản Isuzu QKR QLR77FE4 là đèn halogen cao cấp giúp tạo điều kiện thuận lợi cho xe di chuyển vào ban đêm một cách thuận lợi và an toàn nhất.
Sử dụng cho mình hệ thống tản nhiệt cứng cáp với các khe hở lớn giúp cho việc thoát khí diễn ra nhanh chóng và giúp động cơ bên trong có thể được làm mát một cách tốt hơn. Nhờ đó tăng thêm tuổi thọ của máy, động có xe giúp xe hoạt động được bền bỉ theo thời gian.
Nội thất xe được thiết kế sang trọng, rộng rãi tạo được sự thoải mái cho người ngồi. Phần cabnin được trang bị đầy đủ tiện nghi tạo được sự thoải mái nhất cho người sử dụng khi di chuyển trên cung đường dài.
Đánh giá xe tải Isuzu QKR QLR77FE4 chở thủy sản về kết cấu sàn
Khung sàn:
- Đà dọc sàn thùng cấu tạo từ nhôm Z120x60x60x4. Đà ngang gỗ []70×50.
- Mảng sàn là tấm Panel gồm mặt sàn composite phẳng/SUS chấn sóng, đến tấm lót sàn bằng gỗ dày 20mm, tiếp đến là đà ngang gỗ, phía dưới là tấm phủ composite dày 2,5mm, khoảng trống giữa các đà ngang là lớp cách nhiệt Poly-Urethane. Các lớp sàn liên kết với nhau bằng keo dán hoá chất.
Vách trước:
- Xương đứng phía ngoài vách trước []80x40x1,4, xương đứng phía trong vách trước Z50x25x25x2, xương ngang vách trước []80x40x1,4.
- Mảng vách trước là tấm Panel gồm 2 lớp composite phía mặt trong và mặt ngoài, ở giữa là các xương đứng, khoảng trống giữa các xương đứng là lớp cách nhiệt Poly-Urethane. Các lớp vách liên kết với nhau bằng keo dán hoá chất.
- Toàn bộ sàn chở được liên kết với sát xi ô tô 06 bát liên kết sử dụng 06 bu lông M16x1,5 và 4 bát chống xô U80x40x4 thông qua 2 bu lông M14x1,25 và 2 bu lông M10x1,25 mỗi bát.
Ghi chú:
- Thép có thể là: SS400, CT3 … SUS có thể là: 201,304,430.
- Khối lượng sàn chở được xác định dựa trên mô hình được xây dựng và gán các loại vật liệu phù hợp trên máy tính theo đó Gsc = 475 (kg).
Vật liệu một số chi tiết của sàn chở là thép SS400 hoặc SUS 430, 201, 304 thì không ảnh hưởng đến khối lượng thùng tải cũng như khối lượng toàn bộ của xe. Vì khối lượng riêng của các loại vật liệu này là tương đương, cụ thể như bảng bên dưới:
| KHỐI LƯỢNG RIÊNG CỦA THÉP, SUS, NHÔM | |||
|
Thép SS400, CT3
|
SUS 201/304 | SUS 430 | NHÔM |
| 7,85 (g/cm3) | 7,93 (g/cm3) | 7,70 (g/cm3) | 2,70 (g/cm3) |
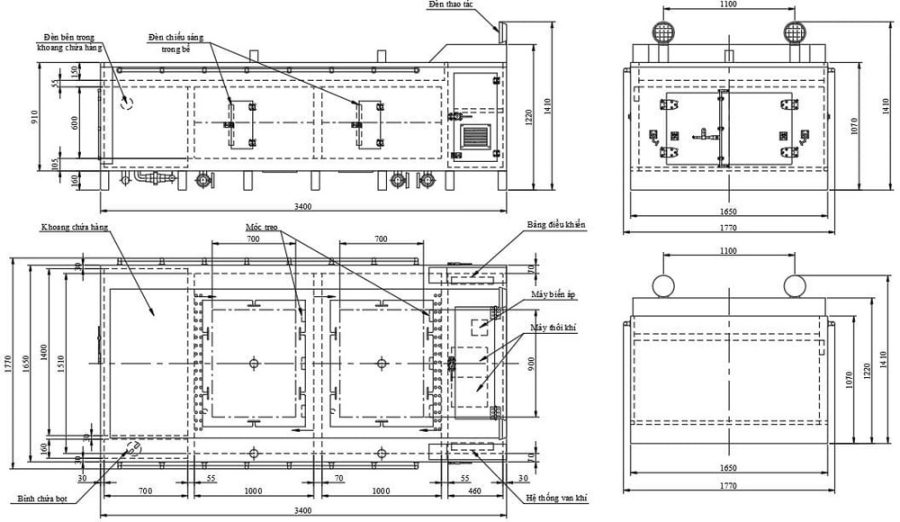
Review thùng xe tải chở thủy sản Isuzu QKR QLR77FE4
Là mẫu xe tải chuyên dụng sử dụng để chở thủy hải sản. Vậy nên thùng xe tải được Trường Long Auto nhập khẩu đồng bộ từ Nhật Bản. Với các tính toán phân bổ khối lượng lên các trục như:
| Bảng kết quả tính toán khối lượng và phân bố khối lượng của ô tô | ||||
| TT | Các thành phần Khối lượng | Trị số | Trục 1 | Trục 2 |
| 1 | Khối lượng bản thân ôtô cơ sở (Gsx), kg | 1920 | 1310 | 610 |
| 2 | Khối lượng thùng chứa thuỷ sản (Gts), kg | 700 | 75 | 625 |
| 3 | Khối lượng sàn chở (Gsc), kg | 475 | 70 | 405 |
| 4 | Khối lượng bản của thân ôtô (G0), kg | 3095 | 1455 | 1640 |
| 5 | Khối lượng kíp lái (Gkl), kg | 195 | 195 | 0 |
| 6 | Khối lượng hàng chuyên chở khoang 1 cho phép than gia giao thông (Ghh1), kg | 825 | 295 | 530 |
| 7 | Khối lượng hàng chuyên chở khoang 2 cho phép than gia giao thông (Ghh2), kg | 825 | -25 | 850 |
| 8 | Khối lượng hàng chuyên chở khoang 3 cho phép than gia giao thông (Ghh3), kg | 50 | -20 | 70 |
| 9 | Khối lượng toàn bộ cho phép tham gia giao thông (G), kg |
4990 | 1900 | 3090 |
| 10 |
Khả năng chịu tải lớn nhất trên từng trục của
xe cơ sở, kg |
2360 | 3500 | |
Ghi chú:
- Khoang 1 chứa nước và thủy sản
- Khoang 2 chứa nước và thủy sản
- Khoang 3 chứa hành lý
Thông số kỹ thuật xe tải chở thủy hải sản Isuzu QKR QLR77FE4
| TT | Các nội dung cần thuyết minh | ||
| 1 | Thông tin chung | Ôtô cơ sở | Ôtô thiết kế |
| 1.1 | Loại phương tiện: | Ô tô sát xi tải | Ô tô chở thuỷ sản |
| 1.2 | Nhãn hiệu, số loại của phương tiện | ISUZU QKR QLR77FE4 | ISUZU QKR QLR77FE4/AKH-CTS |
| 1.3 | Công thức bánh xe | 4×2 | |
| 2 | Thông số về kích thước | ||
| 2.1 | Kích thước bao: Dài x rộng x cao (mm) | 5165x1860x2240 | 5380x2000x2350 |
| 2.2 | Khoảng cách trục (mm) | 2765 | |
| 2.3 | Vết bánh xe trước/sau (mm) | 1398/1425 | |
| 2.4 | Vết bánh xe sau phía ngoài (mm) | 1655 | |
| 2.5 | Chiều dài đầu xe (mm) | 1095 | |
| 2.6 | Chiều dài đuôi xe (mm) | 1305 | 1520 |
| 2.7 | Khoảng sáng gầm xe (mm) | 210 | |
| 2.8 | Góc thoát trước/sau (độ) | 23/18 | 23/19 |
| 2.9 | Chiều rộng cabin (mm) | 1820 | |
| 2.10 | Chiều rộng thùng hàng (mm) | – | 2000 |
| 3 | Thông số về khối lượng | ||
|
3.1
|
Khối lượng bản thân (kg) | 1920 | 3095 |
| Phân bố lên cụm cầu trước (trục 1) | 1310 | 1455 | |
| Phân bố lên cụm cầu sau (trục 2) | 610 | 1640 | |
| 3.2 | Khối lượng hàng chuyên chở cho phép tham gia giao thông (kg) |
– |
1700
(825+825+50) |
| 3.3 | Khối lượng hàng chuyên chở theo thiết kế (kg) |
– |
1700
(825+825+50) |
| 3.4 | Số người cho phép chở kể cả người lái (người) |
03 (195 kg) | |
|
3.5
|
Khối lượng toàn bộ cho phép tham gia giao thông (kg) |
– | 4990 |
| Phân bố lên cụm cầu trước (trục 1) | – | 1900 | |
| Phân bố lên cụm cầu sau (trục 2) | – | 3090 | |
| 3.6 | Khối lượng toàn bộ theo thiết kế (kg) | 4990 | 4990 |
| 3.7 | Khả năng chịu tải lớn nhất trên từng trục của xe cơ sở (kg) |
2360/3500 | |
| 4 | Thông số về tính năng chuyển động | ||
| 4.1 | Tốc độ cực đại của xe (km/h) | – | 92.1 |
| 4.2 | Độ dốc lớn nhất xe vượt được (%) | – | 35.0 |
| 4.3 | Thời gian tăng tốc của xe từ lúc khởi hành đến khi đi hết quãng đường 200m |
– | 21.8 |
| 4.4 | Góc ổn định tĩnh ngang của xe khi không tải (độ) |
– | 40.5 |
| 4.5 | Bán kính quay vòng theo vết bánh xe trước phía ngoài (m) |
5.7 | |
| 5 | Động cơ | ||
| 5.1 | Kiểu loại động cơ | 4JH1E4NC | |
| 5.2 | Loại nhiên liệu, số kỳ, số xi lanh, cách bố trí xi lanh, phương thức làm mát |
Diesel, 4 kỳ, 4 xy lanh thẳng hàng, tăng áp làm mát
bằng nước |
|
| 5.3 | Dung tích xi lanh (cm3) | 2999 | |
| 5.4 | Tỉ số nén | 15,9:1 | |
| 5.5 | Đường kính xi lanh x hành trình (mm) | 95,4×104,9 | |
| 5.6 | Công suất lớn nhất (kW)/ tốc độ quay (vòng/phút) |
77/3200 | |
| 5.7 | Mô men xoắn lớn nhất (N.m)/ tốc độ quay (vòng/phút) |
230/1400~3200
|
|
| 5.8 | Vị trí bố trí động cơ trên xe | Phía trước | |
| 5.9 | Phương thức cung cấp nhiên liệu |
Phun nhiên liệu điện tử
|
|
| 5.10 | Nồng độ khí thải |
Đáp ứng mức Euro IV
|
|
| 6 | Li hợp: | ||
| 6.1 | Kiểu loại |
01 đĩa ma sát khô
|
|
| 6.2 | Dẫn động ly hợp |
Dẫn động thủy lực
|
|
| 7 | Hộp số: | ||
| 7.1 | Kiểu loại |
Cơ khí, 5 số tiến, 1 lùi
|
|
| 7.2 | – Tỉ số truyền của hộp số. |
i1 = 5.016; i2 = 2.672; i3 = 1.585;
i4 = 1,000; i5 = 0.770; ilui = 4.783 |
|
| 7.4 | Các đăng: |
Không đồng tốc
|
|
| 8 | Cầu xe | ||
| 8.1 | Cầu dẫn hướng | Trục 1 | |
| 8.2 | Cầu chủ động | Trục 2 | |
| 8.2.2001 | Tỉ số truyền cầu chủ động | 5.857 | |
| 8.3 | Khả năng chịu tải (Trục 1/Trục 2) (kg) | 2400/3500 | |
| 9 | Bánh xe và lốp | ||
| 9.1 | Trục 1 (số lượng/kích cỡ/chỉ số khả năng chịu tải/cấp tốc độ) |
02 / 7.00-15 / 114 / L
|
|
| 9.2 | Trục 2 (số lượng/kích cỡ/chỉ số khả năng chịu tải/cấp tốc độ) |
04 / 7.00-15 / 112 / L
|
|
| 10 | Hệ thống treo | ||
| 10.1 | Trục 1 | ||
| 10.1.2002 | Kiểu loại |
Phụ thuộc, nhíp lá
|
|
| 10.1.2003 | Giảm chấn | Thủy lực | |
| 10.2 | Trục 2 | ||
| 10.2.2001 | Kiểu loại |
Phụ thuộc, nhíp lá
|
|
| 10.2.2002 | Giảm chấn | Thủy lực | |
| 10.3 | Số lá nhíp (chính+phụ) trục 1/2 |
06 / 10 (05+05)
|
|
| 11 | Hệ thống phanh | ||
|
11.1
|
Phanh chính (trước/sau) |
Tang trống/Tang trống
|
|
| Dẫn động |
Thủy lực 2 dòng, trợ lực chân không
|
||
|
11.2
|
Phanh tay | Tang trống | |
| Dẫn động |
Cơ khí tác dụng lên trục thứ cấp hộp số
|
||
| 11.3 | Phanh dự phòng | – | |
| 12 | Hệ thống lái | ||
| 12.1 | Kiểu |
Trục vít ecu-bi
|
|
| 12.2 | Tỷ số truyền cơ cấu lái | 22,6:1 | |
| 12.3 | Dẫn động | Cơ khí có trợ lực thủy lực | |
| 13 | Hệ thống điện | ||
| 13.1 | Điện áp định mức | 12V | |
| 13.2 | Ắc qui | 12V – 80Ah x 1 bình | |
| 13.3 | Máy phát | 14V (Kiểu xoay chiều) | |
| 13.4 | Khởi động | – | |
| 13.5.2001 | – Hệ thống đèn chiếu sáng phía trước: Đèn chiếu sáng (xa/gần) Đèn báo rẽ và đèn cảnh báo nguy hiểm Đèn sương mù Đèn kích thước |
02, màu trắng 02, màu vàng 02, màu trắng 02, màu trắng |
|
| 13.5.2002 | – Hệ thống đèn tín hiệu phía sau: Đèn phanh và đèn kích thước Đèn báo lùi Đèn soi biển số Đèn báo rẽ và đèn cảnh báo nguy hiểm Tấm phản quang |
02, màu đỏ 02, màu trắng 01, màu trắng 02, màu vàng 02, màu đỏ |
|
| 13.5.2003 | – Hệ thống đèn phụ tải: Đèn hiệu thành xe |
— | 04, màu vàng |
| 14 | Thân xe/Cabin | ||
| 14.1 | Kiểu thân xe | Sát xi chịu lực | |
| 14.2 | Số lượng người trong cabin | 3 người | |
| 14.3 | Cửa sổ | 2 cửa | |
| 15 | Mô tả sàn chở | ||
| 15.1 | Kiểu thùng hàng | — | Sàn chở |
| 15.2 | Kích thước lọt lòng thùng (mm) | — | 3520×1920 |
| 16 | Mô tả thùng chứa thuỷ sản | ||
| 15.1 | Xuất xứ | — | Nhật Bản |
| 15.2 | Kích thước bao (mm) | — |
3400x1770x1410
|
Địa chỉ mua xe tải chuyên dụng chính hãng giá tốt nhất 2023
Hiện nay Trường Long Auto được biết đến là đại lý chuyên cung cấp các dòng xe tải chuyên dụng uy tín với mức giá rẻ nhất thị trường. Đến với Trường Long, chúng tôi có đa dạng sản phẩm cho quý khách hàng lựa chọn, hứa hẹn sẽ là địa chỉ mang đến những trải nghiệm thú vị và hài lòng nhất cho quý khách.
Sở hữu cho mình hệ thống showroom rộng khắp với diện tích lên đến 10.000m2, cùng đó là kinh nghiệm hoạt động hơn 15 năm trong ngành. Công ty TNHH Trường Long Auto tự tin trong việc mang đến những sản phẩm tốt và chất lượng nhất đến tay khách hàng của mình. Chúng tôi sẽ tư vấn đưa ra những sản phẩm tốt nhất, phù hợp nhất với cả nhu cầu cũng như mức chi phí mà khách hàng có thể chi trả.
- Trường Long Auto: Địa chỉ mua xe tải rẻ nhất 2023!
- Địa chỉ xe tải Hino Bình Dương: 155 Quốc Lộ 13, KP Đông Ba, Phường Bình Hòa, Tp. Thuận An, Tỉnh Bình Dương
- Địa chỉ bán xe tải Hino Bình Thuận: Thửa đất số 27, Tờ bản đồ số 02, Đường Trường Chinh, Khu Phố 1, P. Phú Tài, TP. Phan Thiết, T. Bình Thuận
- Liên hệ website: truonglongauto.com – Hotline: 0914 851 599/ 0937 361 599
Đặc biệt khi mua xe tải tại Trường Long Auto chúng tôi còn có xưởng đóng thùng riêng và không qua bất kỳ trung gian nào. Do đó thùng xe tải được đóng tại Trường Long luôn được đảm bảo về chất lượng đồng thời mức giá cũng rất cạnh tranh.
Nếu bạn đang muốn tìm cho mình địa chỉ mua xe tải chuyên dụng giá rẻ chất lượng tại Bình Dương thì đừng ngần ngại mà ghé ngay với Trường Long Auto nhé. Chúng tôi hứa hẹn sẽ là địa chỉ mang đến những sản phẩm tốt, chất lượng nhất đến tay quý khách hàng.








Reviews
There are no reviews yet.